Descubre este encantador piso ubicado en la tranquila zona de Can Calders

Sant Feliu de Llobregat (Can Calders) - REF. 17713

Ref. 17713 70 m2 2 1
venta: 235.000 
venta anterior: 238.000 €

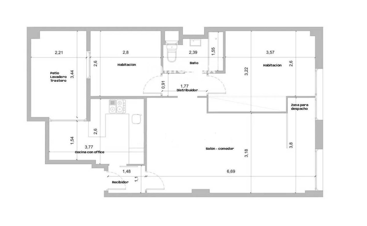
Descubre este encantador piso ubicado en la tranquila zona de Can Calders, en el corazón de Sant Feliu de Llobregat. Con una superficie construida de 70 m² y un área útil que alcanza los 68 m², esta propiedad ofrece un ambiente acogedor ideal para disfrutar del confort diario. La vivienda cuenta con una habitación doble amplia y luminosa, además de otra habitación sencilla perfecta para oficina o invitados. El baño completo está diseñado pensando en la funcionalidad y comodidad diaria. Su estado es muy bueno, lo cual permite entrar a vivir sin necesidad inmediata de reformas. Esta opción inmobiliaria se presenta como una excelente oportunidad tanto para parejas jóvenes como personas solteras que busquen su primer hogar o inversionistas interesados por el potencial alquiler debido a su ubicación privilegiada cerca del transporte público y servicios esenciales.

Índice de alquiler

Construidos 70 m2
Útiles 68 m2
Precio/m² 3.357
Dormitorios 2
Baños 1
Cocina Amueblada
Trastero
Orientación SUR
Ascensor
Aire acondicionado
Calificación Energética En trámite

Inmuebles similares:

 
 70 m2  2  1

Descubre este encantador piso ubicado en la tranquila zona de Can Calders

235.000 €
 
 72 m2  3  1
PISO IDEAL 3 HABITACONES CON BALCÓN, PATIO Y ASCENSOR CERCA HOSPITAL VITHAS
270.000 €
Contacta con tu asesor
Mari Carmen Jordano (Venta)
Solicita información

Si deseas más información sobre esta propiedad, por favor, rellena el formulario: