Casa en venta, Begues - MAS FERRER

Begues - REF. 17627

Ref. 17627 318 m2 4 3 1
venta: 750.000 

¡Descubre tu nuevo hogar en la exclusiva zona de Mas Ferrer!

Esta impresionante casa independiente de 318 m² construidos y 260 m² útiles sobre una parcela de 614 m2, orientada a cuatro vientos, te ofrece el equilibrio perfecto entre confort y naturaleza. Con una fachada de obra vista que destaca por su elegancia, esta vivienda se distribuye en varias plantas conectadas por una escalera, brindándote espacios amplios y luminosos.

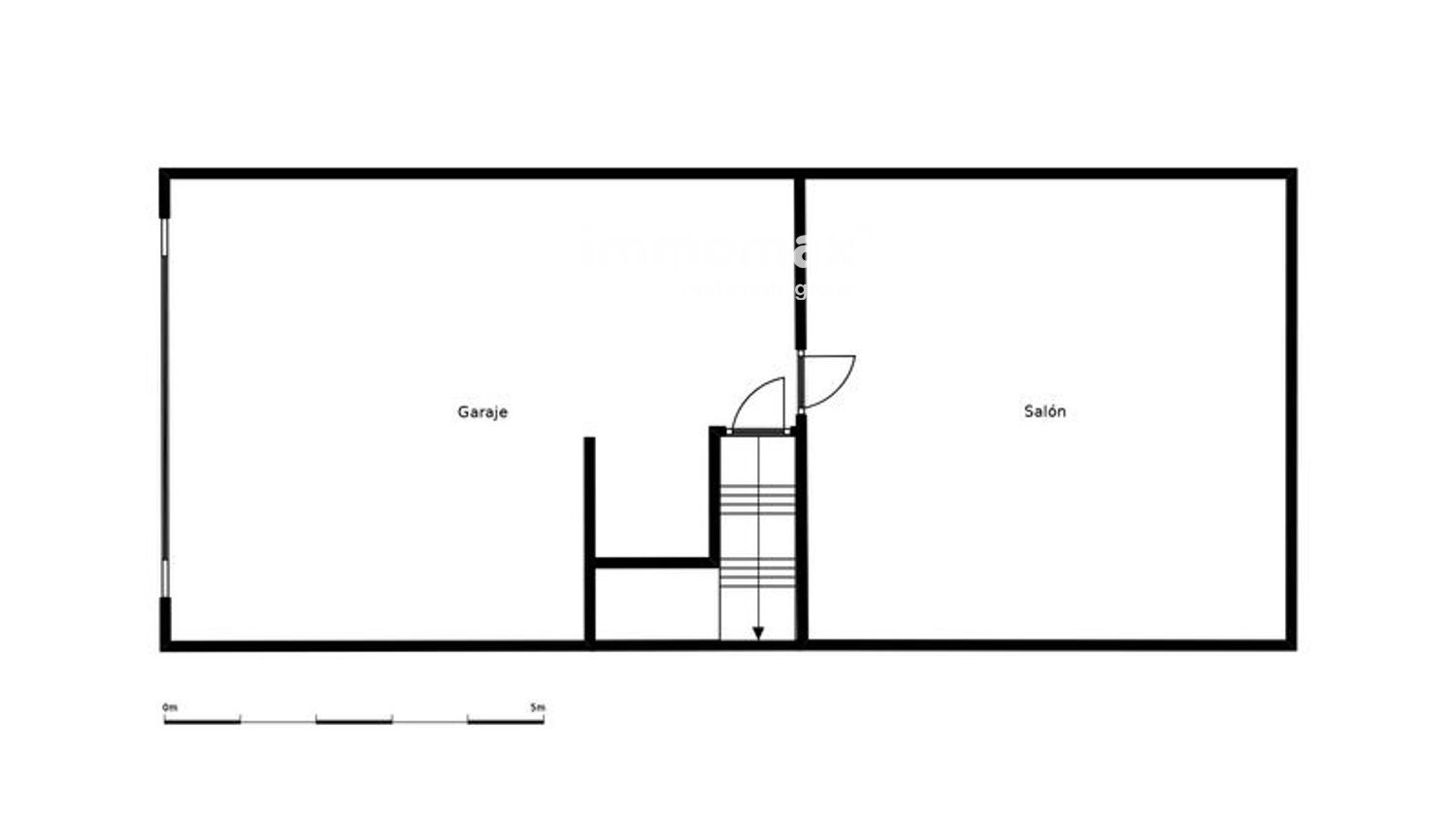
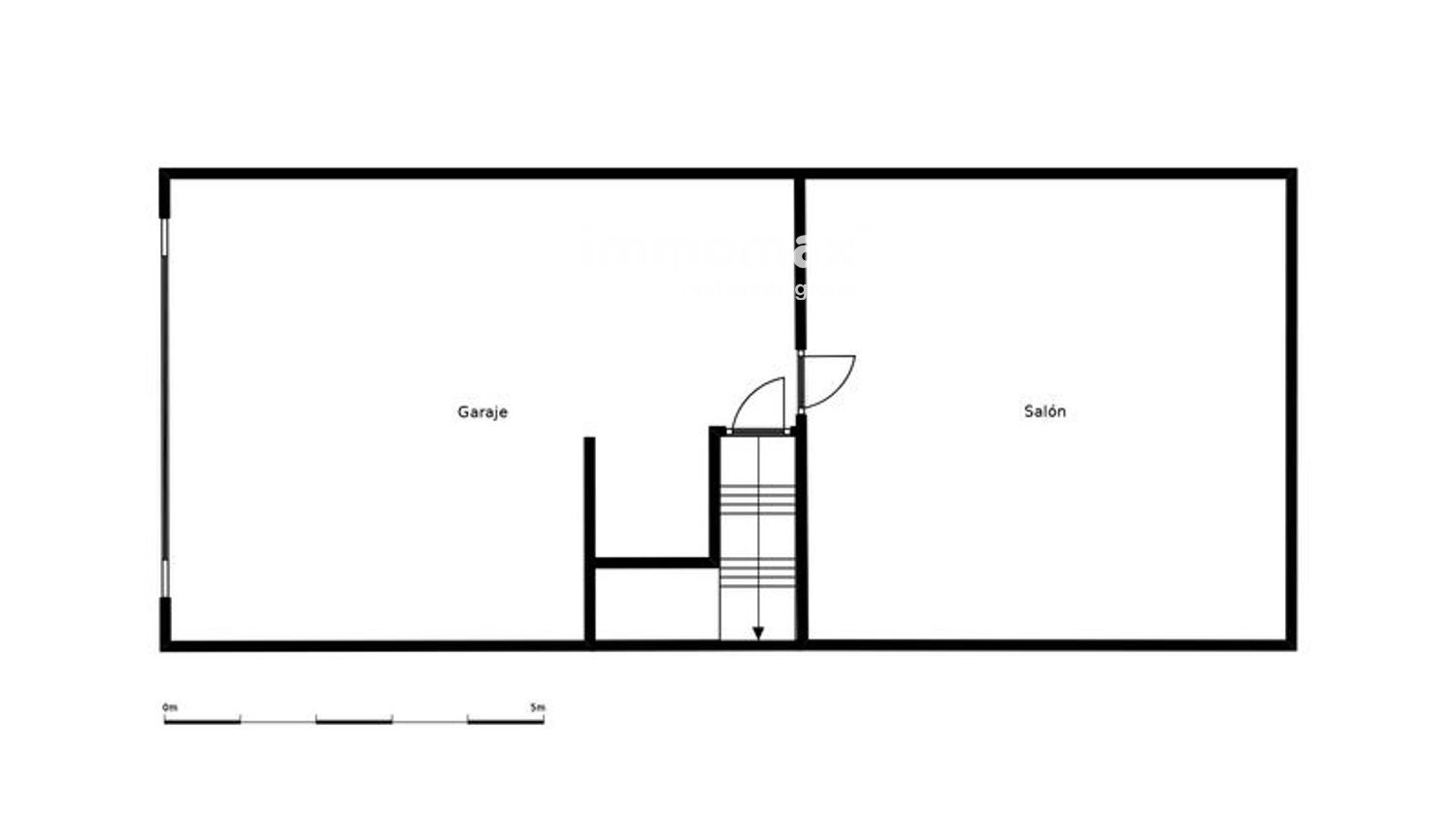
En la planta sótano encontrarás un amplio parking, una sala de máquinas y un lavadero. La planta baja te recibe con un acogedor salón comedor con chimenea, una habitación, un aseo y una cocina totalmente equipada. Desde aquí, accede al jardín con porche, piscina privada y zona de barbacoa, ideal para disfrutar de momentos inolvidables en familia o con amigos.

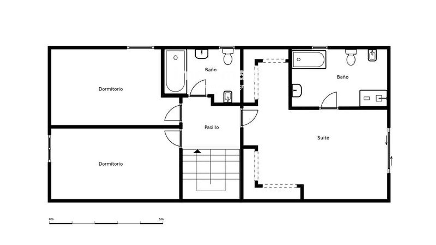
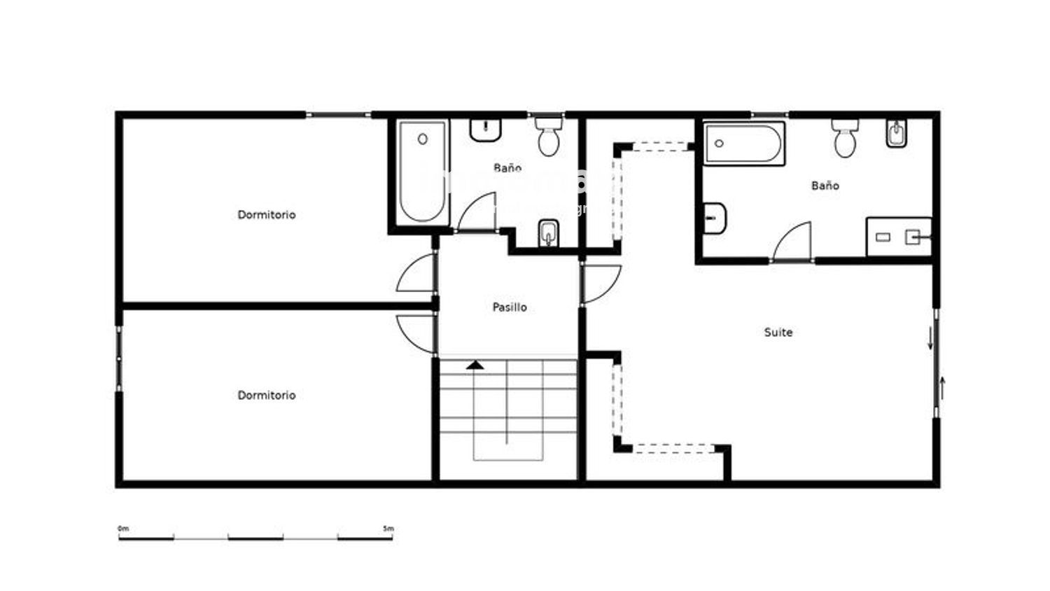
La primera planta alberga dos habitaciones que comparten un baño, además de una espectacular habitación principal con baño completo, vestidor y acceso a una terraza privada. La última planta es una buhardilla con techo de madera que se abre a un solarium, perfecto para relajarte bajo el sol.

Equipada con calefacción por gasoil y aire acondicionado, esta casa garantiza tu comodidad durante todo el año. Situada en el corazón del Garraf, disfrutarás de una ubicación en plena naturaleza, sin renunciar a las comodidades de una población con todos los servicios necesarios, infraestructuras, centros de enseñanza y centro de salud.

¡No pierdas la oportunidad de vivir en un entorno privilegiado y contacta con nosotros para más información!


*En el precio de venta están incluidos los honorarios de la agencia inmobiliaria, no incluye impuestos ni gastos, los precios de la oferta pueden ser modificados o darse de baja sin previo aviso. Se debe añadir a la compra en viviendas de segunda mano el ITP, en viviendas de Obra Nueva el IVA y AJD y en ambos casos los honorarios de notaría y registro, todos los datos expuestos son meramente orientativos."


En Immomax Eltaservei tenemos un objetivo muy claro de cara a nuestros clientes, y es el de poder acompañarte de principio a fin en la maravillosa aventura de encontrar tu futuro hogar, con un enfoque muy claro, priorizando tu satisfacción y calidad de tiempo, centrándonos en tus necesidades y poniendo en marcha estrategias consolidadas para que el proceso de compra-venta sea lo más cómodo y seguro para ti.

Servicios:

- Ofrecemos servicio de relocation, soluciones dinámicas y proactivas para la rápida integración en el nuevo destino.
- Asesoramos y gestionamos tu hipoteca ayudándote con la documentación y todos los tramites.
- Asesoramiento en todo tipo de reformas, obra nueva, diseño de interiores.

Immomax Eltaservei se diferencia en los más altos estándares de transparencia, honestidad y discreción en nuestro trabajo. Nuestro compromiso radica en la satisfacción de nuestros clientes, poniendo a su alcance toda la ayuda necesaria para hacer de su operación inmobiliaria todo un éxito.
Nos apasiona nuestra profesión.

¡Trabajamos para conseguir tu sueño!

Immomax Eltaservei siempre a vuestro a lado...

AICAT N.º 13.105

Índice de alquiler

Construidos 318 m2
Útiles 260 m2
Precio/m² 2.358
Dormitorios 4
Baños 3
Trastero
Garajes 1
Orientación NORTE, SUR, ESTE, OESTE
Aire acondicionado
Piscina comunitaria
Calificación Energética En trámite

Visita Virtual

Inmuebles similares:

 
 381 m2  6  4
Casa en venta en Begues, con 381 m2, 6 habitaciones y 4 baños, Piscina, Garaje, Trastero y Aire acondicionado.
850.000 €
 
 156 m2  4  2

Presentamos en exclusiva espectacular casa ubicada en la urbanización de Montemar, una de las zonas más demandadas de Castelldefels.

La vivienda cuenta con una parcela de 323 m2, nada más entrar podremos apreciar su precioso jardín muy bien conservado con amplia variedad de vegetación, que nos conduce a unas escaleras exteriores, dirigiéndonos a la primera planta de la vivienda. Si subimos un poco más por las mismas escaleras, nos llevará a la zona de barbacoa. La vivienda dispone de 156 m2 construidos, distribuidos en dos plantas.
La vivienda cuenta con calefacción en todas las estancias. suelos de mármol y parquet. Garaje con capacidad para dos vehículos.
¡Una oportunidad única en un entorno único esperando por ti!

739.000 €
Contacta con tu asesor
Tatyana Moyal
Solicita información

Si deseas más información sobre esta propiedad, por favor, rellena el formulario: